Meadows Type 14 Floor Plan

Built up area of 4 099 sq.
Meadows type 14 floor plan. Type 11 5 bedroom 3 970 sf floorplan. Types of 5 bedroom villas. Meadows crossing floor plans have been designed to promote energy efficiency. The area plays an appealing role of a community that is well formulated and utilizes the space in organized manner.
The meadows 6 has 15 more floor plans for different types of villas. Type 16 5 bedroom 3 687 sf floorplan. Find the best offers for villas meadows type 14. Plan 2 639 990 2641 sf 3 den bed 3 5 bath plan 3 679 990 3030 sf 4 den bed 3 5 bath.
Type 15 3 bedroom 3 089 sf floorplan. The floor plan details will be available shortly. 2d and 3d floor plans for type 14 5 bathroom 4 bedroom villas in the meadows 6 the meadows. Type 14 meadows 7 quiet location near park tennis basketball courts 4 bed.
This area proves its worth. Find the best offers for villas meadows type 7 floor plan. Executive villa 1 e1. The meadows place to live near greenery belt.
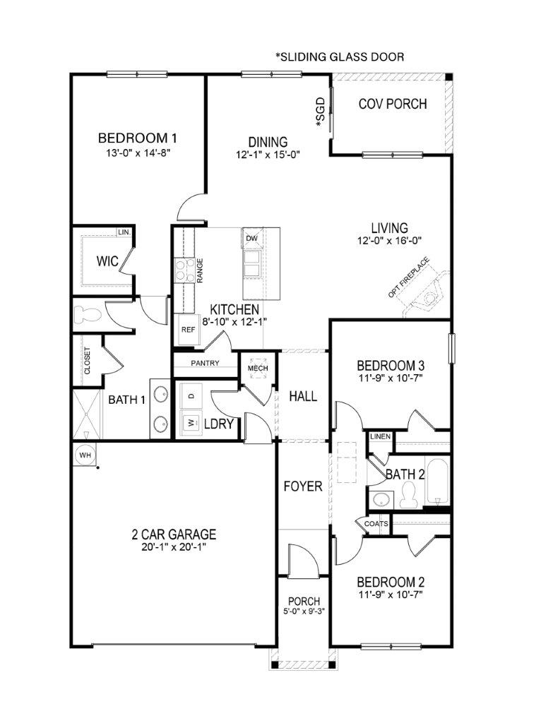
Meadows 9 type 7 best villa 5 bedroom plus maid back to back close to lake. Type 14 4 bedroom 4 099 sf floorplan. On transfer type 14 this villa is landscaped with a private pool. The type of villa.
170 villas in meadows from aed 3 299 999. Thanks for your interest. Floor plans for meadows are currently not available. In meadows you will find three types of 3 bedroom villas four types of 4 bedroom villas etc.
Plan and villa type 7 actual floor plan are attached about project tranquil. The meadows is planted in the city heart and is most lovable luxury accommodation for buyers and renters. Download master plan project brochure floor plans for meadows. Meadows floor plans by emaar.
The lake and in a cul de sac. 2d and 3d floor plans for villas in the meadows 9. Download floor plans master plans without watermarks. View 4 bed 3 bed 4 bed 5 bed 6 bed 7 bed floor plans of type 2 15 12 10 8 for villas in the meadows 9.
Meadows floor plans by emaar. 23 villas in meadows from aed 190 000. The type 7 is. Your son or daughter will appreciate knowing that they are reducing their carbon footprint by living at meadows crossing.