Montesa At Gold Canyon Floor Plans

Find new and used mobile homes in gold canyon az.
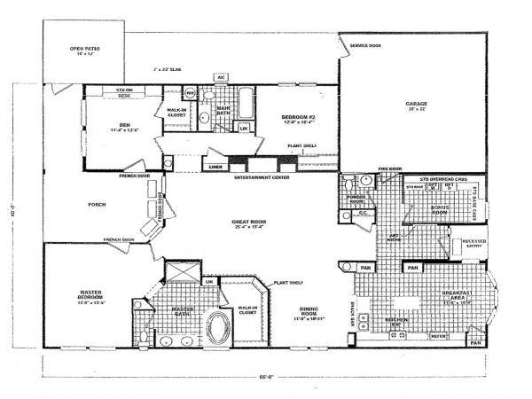
Montesa at gold canyon floor plans. Montesa in gold canyon arizona has a selection of manufactured homes by durango homes. Our exciting new floor plans now offer storage pads for rvs up to 44 ft long so you can keep your rv a few steps away. Durango homes built by cavco is a southwest leader in customized factory built manufactured homes currently you have blocked the website from accessing your location. Us hwy 60 361 gold canyon az 85118 serial.
Floor plans and manufactured homes in gold canyon arizona. Choose a floor plan that fits your lifestyle add in the cabinetry you ve always wanted select countertops that give your home that wow factor pick those beautiful. Montesa offers 55 resort living in beautiful gold canyon az. Montesa at gold canyon mobile home park located in gold canyon az.
Montesa at gold canyon additional information about me because of our close relationships with the best manufactured home builders we are able to offer gold canyon mobile homes. There are currently 65 new and used mobile homes listed for your search on mhvillage for sale or rent in gold canyon. With mhvillage its easy to stay up to date with the latest mobile home listings in gold canyon. Open floor plan with a combo living dining area.
Call us today at 480 982 1311 for more information about senior housing in gold canyon az. We are in beautiful gold canyon arizona just 35 miles east of downtown phoenix. Once you arrive you ll get lost in the serene panoramic views and wide open spaces that surround us. Partially furnished this home has lots to offer for a reasonable price.
Check out this brand new casa noble. Montesa at gold canyon arizona gated community. Must see to appreciate. Age restricted community with 38 mobile homes for sale.
Beautifully landscaped and located just steps from the pool and all the resort amenities montesa has to offer. 7373 e us highway 60 gold canyon az 85118 phone. Our gold canyon manufactured homes with available rv parking is the perfect place to stay active make long lasting friendships and enjoy the life you deserve. Featuring views of the stunning superstition mountains montesa at gold canyon is the perfect place to stay active make long lasting friendships and enjoy the life you deserve.